Logements à St-Mathieu  +info

Concours sur invitation, 2017, 1er prix

Lieu: Bernex (GE). Réalisation 2020-
Maître de l’Ouvrage: Société simple Saint-Mathieu
Pilote: Opalys Project SA
Direction des travaux: Architech SA
Notre équipe: Tomàs de Riba (chef de projet), Teresa Ferreira, Elsa Legoupil, Agustin Fernàndez, Claire Dereuder, Anna Sarbu, Kristina Sylla Widmann, Marc Widmann
Volume: 130'000 m3 SIA 416    

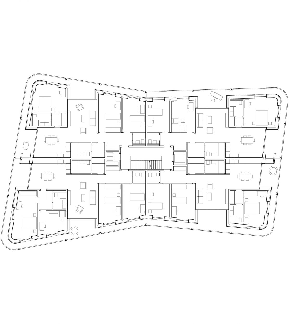
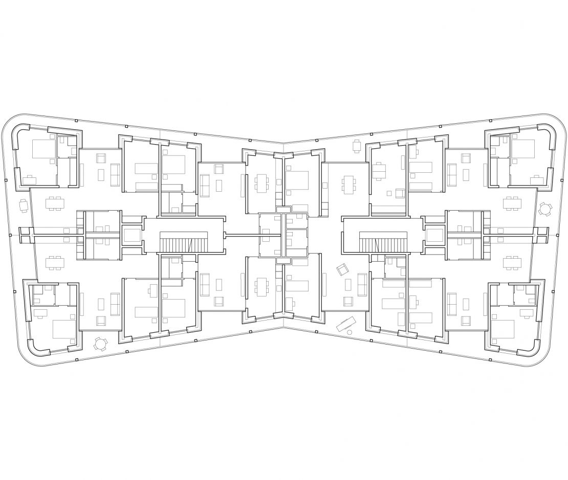
Cet ensemble urbain propose un îlot formé de six bâtiments dont les volumes respectent les dimensions du tissu urbain et rural environnant. Couronné d'espaces publics, l'ensemble entoure un coeur d'îlot paysagé. Côté rues et places, de hauts socles en saillie donnent au projet son caractère urbain. Côté jardin, les logements sont surélevés par des terrasses, afin de compenser les différences de niveaux et d’assurer aux habitants l'intimité nécessaire. Grâce à la géométrie du plan, les logements sont au bénéfice d’une double orientation.