Coopérative Chouet  +info

Concours 2014, 1er prix

Lieu: Rue Chouet, Genève (GE). Réalisation 2019-2021
Maître de l'Ouvrage: La Codha
Notre équipe: Michele Capatori (chef de projet), Michael Casares, Daniel Medina, Yves Beetschen, Kristina Sylla Widmann, Marc Widmann

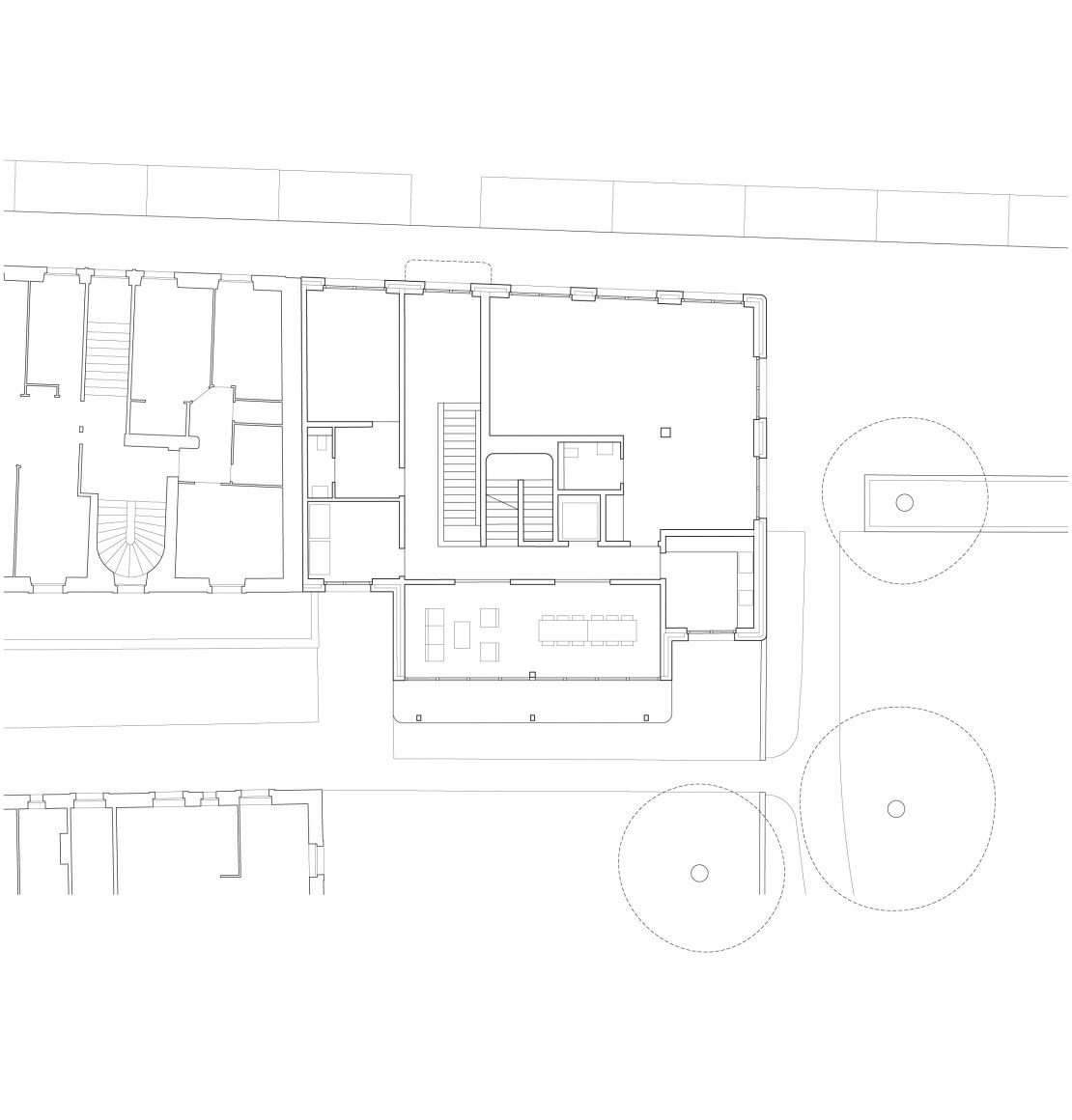
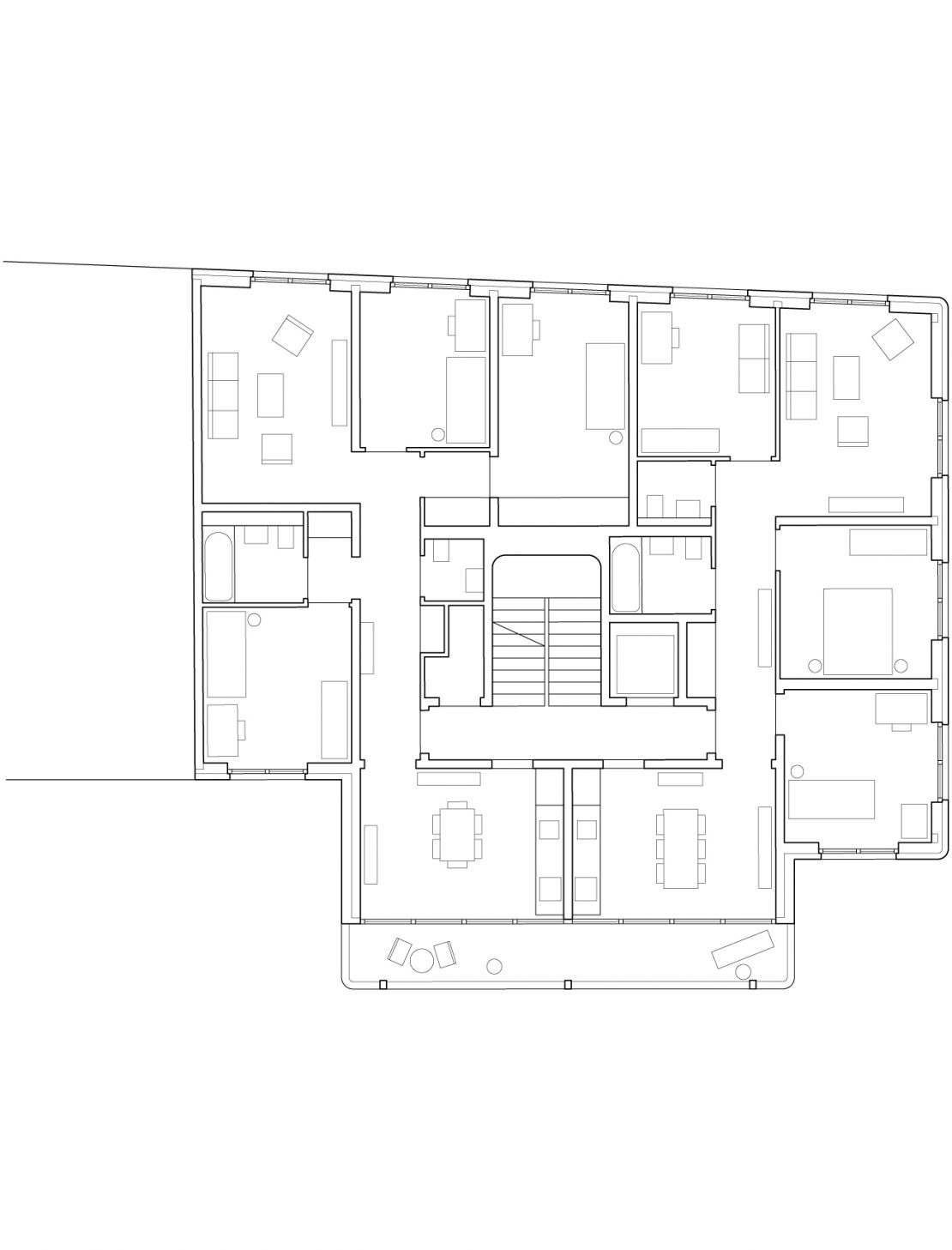
Le bâtiment complète l'amorce d’un îlot ouvert inachevé, comprenant un pavillon central. Côté rue, le projet se place dans le prolongement du front de rue et s'aligne sur les immeubles voisins. Côté cour, une galerie aux angles arrondis s'avance et met en relation le bâtiment avec une cour-jardin. Ce volume abrite aussi bien les locaux communs à l’échelle de l’immeuble : salle commune, pièce indépendante buanderie; que du logement : cuisine-vérandas prolongées par un balcon.