Logements à Soral   +info

Concours 2013, 1er prix. 

Lieu: Soral (GE). Réalisation 2015-2017
Maître de l’Ouvrage: Commune de Soral
Direction des travaux: M Architecture
Notre équipe: Tomàs de Riba (chef de projet), Daniel Medina, Michele Capatori, Nuno Costa, Kristina Sylla Widmann, Marc Widmann 
Volume: 8'000 m3 SIA 416
Photographe: Laura Keller

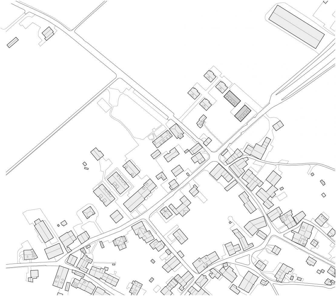
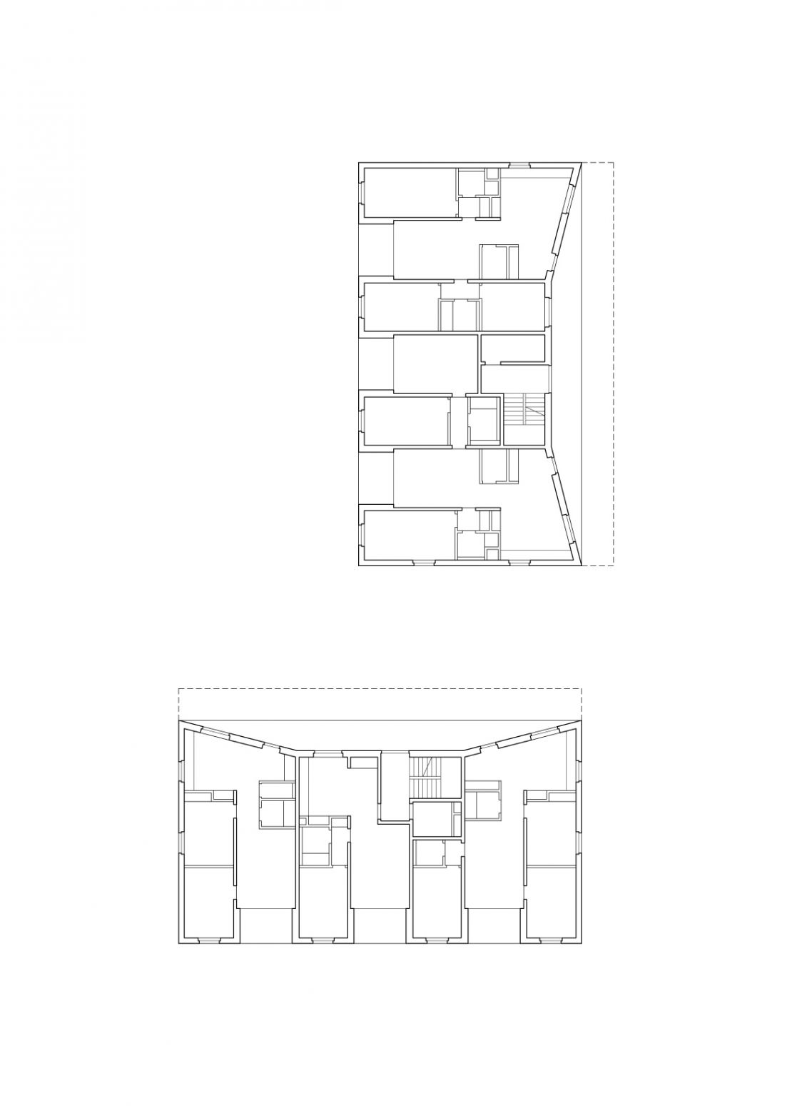
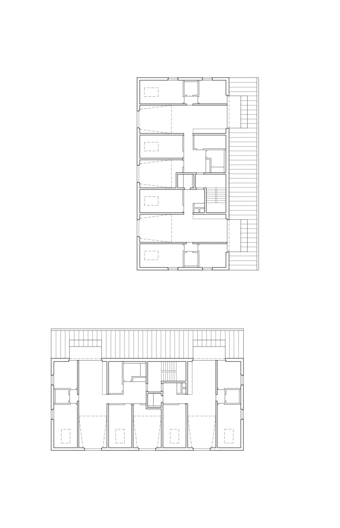
Ces deux immeubles d'habitation se situent à l'entrée du village genevois, face à un vaste paysage. Inscrit dans un plan de quartier en zone patrimoniale, le caractère traversant des logements tisse un lien entre jardin et cour collective. Sa nature d'espace partagé se matérialise par un large avant-toi qui protège une coursive d'accès aux logements et aux cuisines. Les jardins sont des espaces semi-privés sur lesquels donnent le séjour, les chambres et une loggia. Sous le toit, les volumes ont été conçus de façon à pouvoir être entièrement habitables.