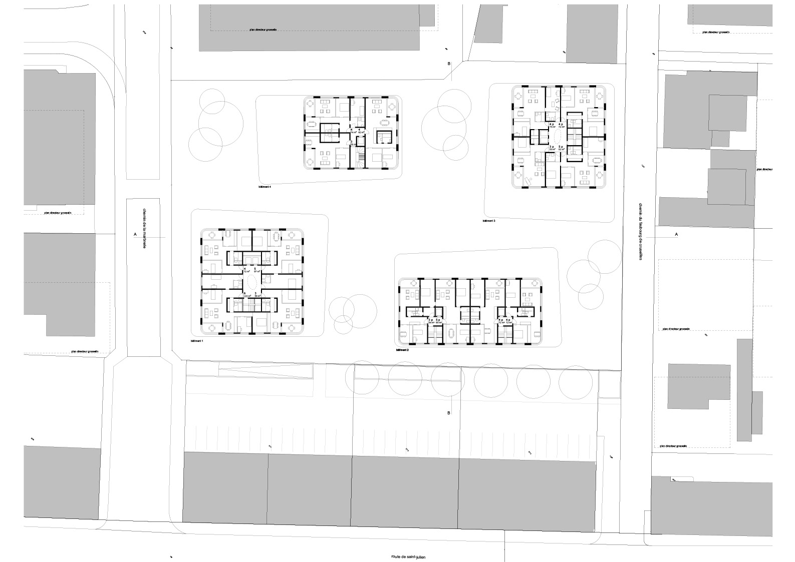
Logements et activités PAV  +info

Concours 2012, 3e prix

Lieu:
 Marbrerie, Carouge (GE)
Maître de l'ouvrage: FPLC
Ingénieurs spécialisés: 
B+S ingénieurs conseils sa
SB technique ingénieurs conseils sarl
Notre équipe: Thomas Bolliger, Yves Beetschen, Nuno Costa, Kristina Sylla Widmann, Marc Widmann