Logements à St-Mathieu  +info

Concours sur invitation 2017, 1er prix

Lieu: Bernex, PLQ de St-Mathieu (GE). Réalisation 2020-
Maître de l'ouvrage: Opalys Project SA 
Notre équipe: Tomàs de Riba, Yves Beetschen, Teresa Ferreira, Kristina Sylla Widmann, Marc Widmann
Volume: 130'000 m3 SIA 416

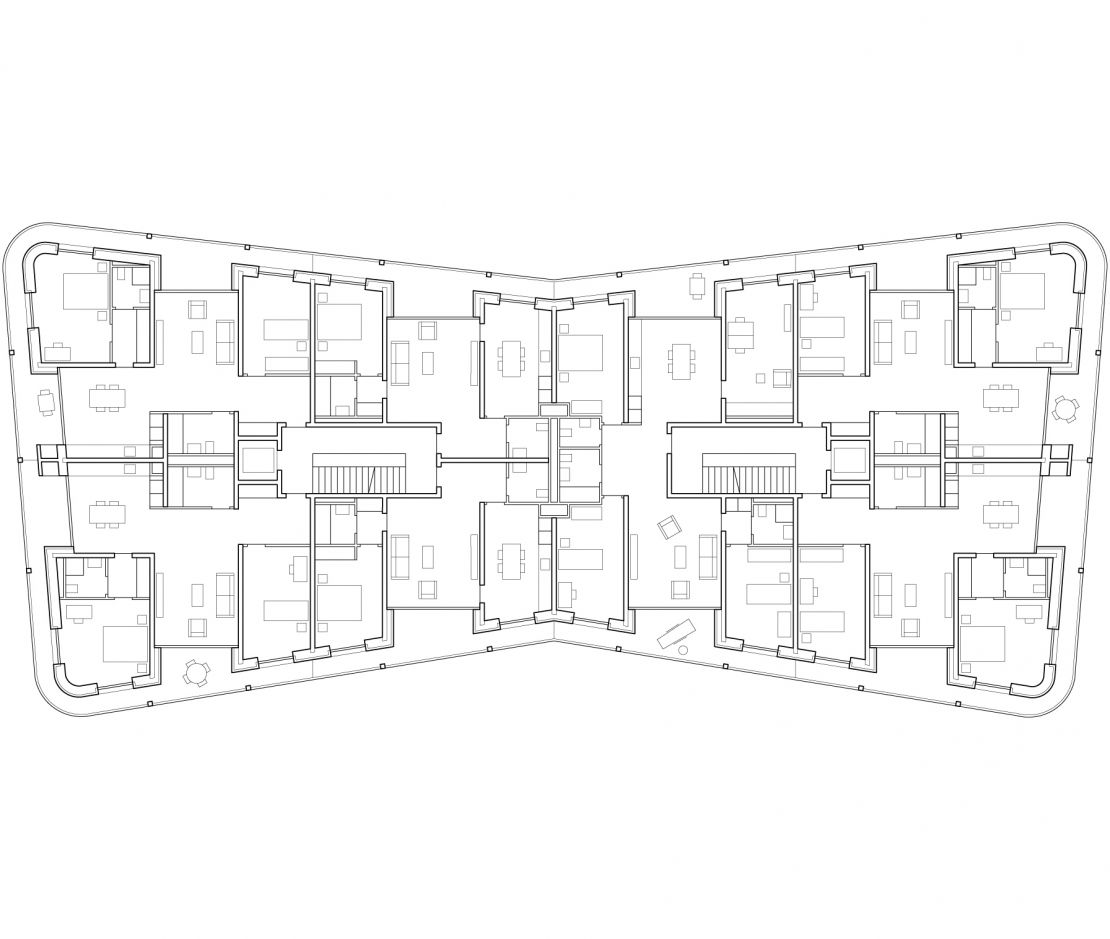
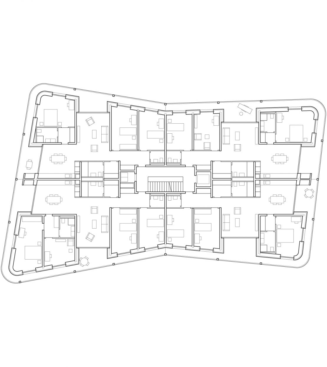
Cet ensemble urbain propose un îlot formé de six bâtiments indépendants dont les volumes respectent les dimensions du tissu urbain et rural environnant. Couronné d'espaces publics, l'ensemble entoure un coeur d'îlot paysagé. Côté rues et places, de hauts socles émergent en saillie et donnent au projet son caractère urbain. Côté jardin, les logements sont surélevés par des terrasses, afin de compenser les différences de niveaux du terrain et d’assurer aux habitants l'intimité nécessaire. Grâce à la géométrie du plan, les logements sont au bénéfice d’une double orientations, soit d’angle, soit traversant.