Logements à Soral   +info

Concours 2013, 1er prix

Lieu:
 Soral (GE). Réalisation 2015-2017
Maître de l'ouvrage: Commune de Soral
Notre équipe: Tomàs de Riba, Michele Capatori, Nuno Costa, Patrick Marmet, Philippe Marmet, Kristina Sylla Widmann, Marc Widmann 

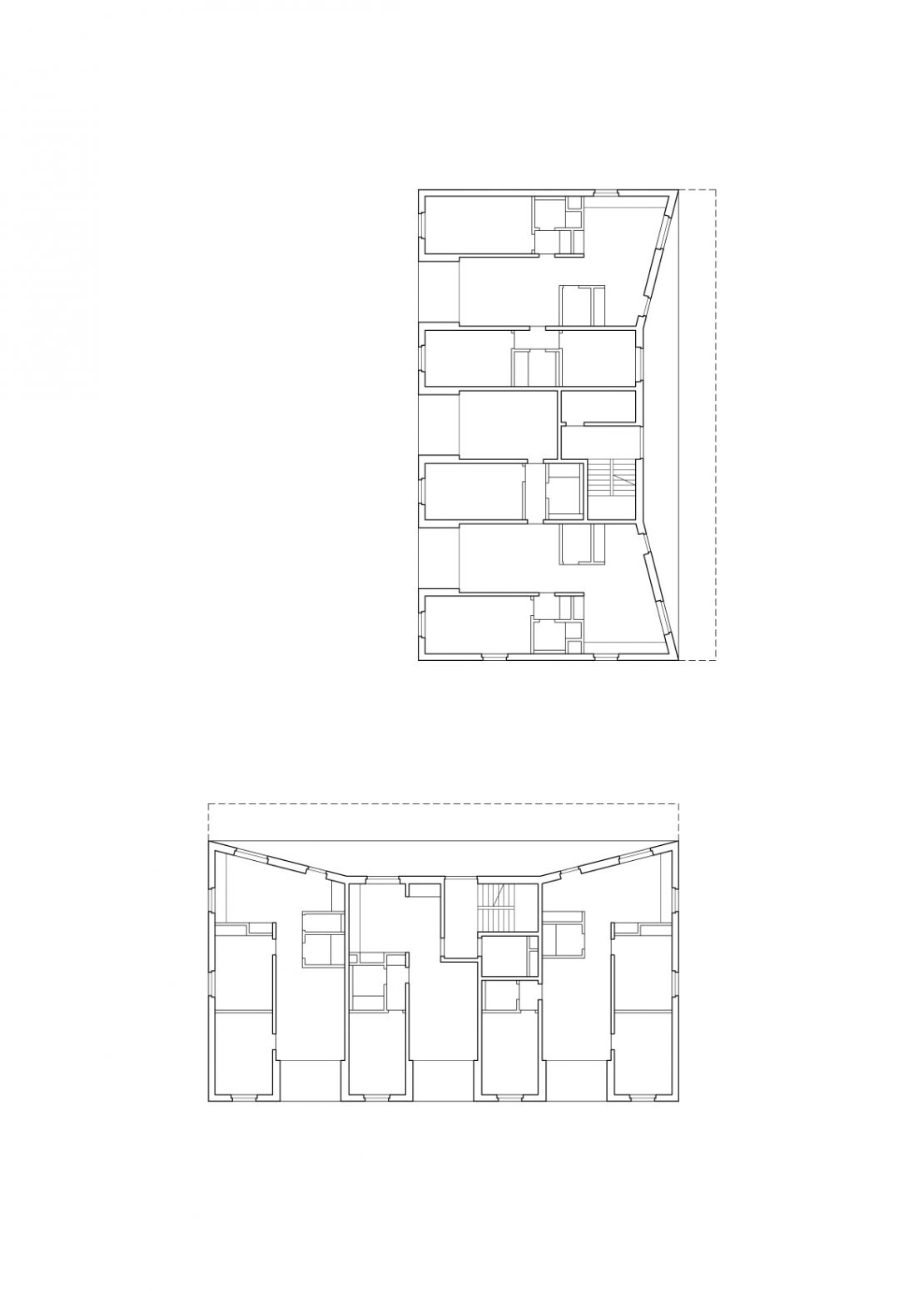
Ces deux immeubles d'habitation se situent à l'entrée du village genevois, face à un vaste paysage ouvert. Inscrit dans un plan de quartier en zone patrimoniale, le caractère traversant des logements tisse un lien entre cour et jardin. La cour est un lieu collectif. Sa nature d'espace partagé se matérialise par un large avant-toit qui protège une coursive d'accès aux logements et aux cuisines. Les jardins sont des espaces semi-privés sur lesquels donnent le séjour, les chambres et une loggia. Sous le toit, les volumes ont été conçus de façon à pouvoir être entièrement habitables.