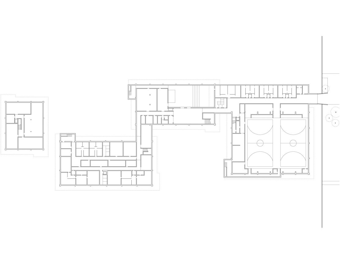
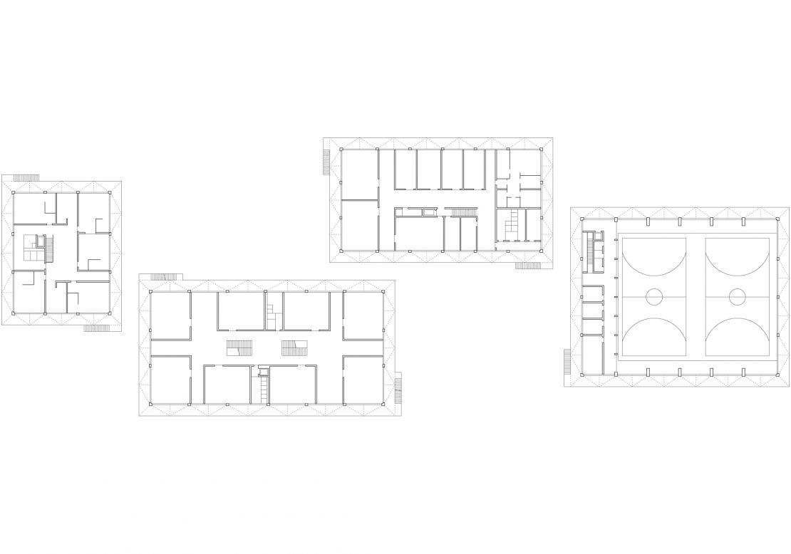
Ecoles des Vergers  +info

Concours 2014, 1er prix

Lieu:
Les Vergers, Meyrin (GE). Réalisation 2016-2018.
Maîtres de l'ouvrage: Commun de Meyrin - Association La Voie Lactée
Notre équipe: Nuno Costa, Yves Beetschen, Michele Capatori, Tomàs de Riba, Kristina Sylla Widmann, Marc Widmann 

Face au grand paysage, quatre pavillons forment un ensemble à l'échelle du quartier. Chacun remplit une fonction tout en profitant de synergies avec les autres. Par le biais d'un système constructif hybride béton-bois, l'architecture a une identité duelle qui intègre cet équipement public dans son contexte, tout en créant une atmosphère intérieure calme et singulière. A l'intérieur, une charpente en bois partitionne les espaces. En façade, des portiques en béton armé forment une ossature durable qui remplit plusieurs fonctions : voies d’évacuation, protection contre les intempéries et contre la surchauffe, stabilité structurelle.